How to measure your wall for wallpapering

How to Measure Your Wall for Wallpapering
Follow our simple How To Measure Your Wall Guide below and we will explain how you can easily calculate the quantity of wallpaper you need.
Measuring your wall is easier than you think. All you need is the width and height of the wall at the longest and widest possible points.
We recommend you to add an extra 3-5 cm on each side to allow for any deviations and measurement inaccuracies.

Standard walls
Simply measure the full width (from left to right) of your wall and height (from floor to ceiling). Make sure you only measure the area that you want to cover (excluding any skirting boards or ceiling moldings).

Sloped walls
When you have a sloped ceiling or wall, measure the wall on the highest and widest point, ignoring any slopes.
Since we print your mural as a square or rectangle, the sloping section is simply cut away during installation.

Multi-sloped walls
If your wall has two slopes, measure the longest part of the wall in width and height. The mural will be produced as a whole rectangle or square, with the sloped parts cutaways taking place during installation.

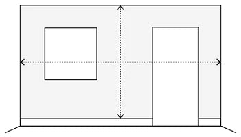
Walls with doors, windows or other obstacles
For walls with a door, window, or other obstacles, measure the total width and height of the wall.
All obstacles is cut away during installation.

Multiple walls
To wrap a wallpaper around multiple walls, simply add the widths of the individual walls and combine these measurements into one when ordering.
Check the height on all walls - if different, use the highest dimension and enter this when ordering.
Your wallpaper should not be ordered in two separate orders as the pattern may not match.
Need Help?
If you have any questions about measuring you wall, just contact us and we will be happy to advise.
Measured Up? Now Explore Our Beautiful Wallpaper Collection!
-
Calm Blossom White Wallpaper Mural (SqM)
Regular price £42.72Regular priceUnit price / per -
Calm Blossom Pink Wallpaper Mural (SqM)
Regular price £42.72Regular priceUnit price / per -
Atlantis Fish Blue Wallpaper Mural (SqM)
Regular price £42.72Regular priceUnit price / per -
Antiquity Beautiful Nudity Wallpaper Mural (SqM)
Regular price £42.72Regular priceUnit price / per -
Owl Forest Night Wallpaper Mural (SqM)
Regular price £42.72Regular priceUnit price / per -
Owl Forest Green Wallpaper Mural (SqM)
Regular price £42.72Regular priceUnit price / per -
Abstract Fields Pink & Blue Wallpaper Mural (SqM)
Regular price £42.72Regular priceUnit price / per -
Bellewood Rainbow Forest Mural Wallpaper (SqM)
Regular price £42.72Regular priceUnit price / per£443.52Sale price £42.72Sale -
Zebra Mural Wallpaper (SqM)
Regular price £26.95Regular priceUnit price / per -
Water Lilies Mural Wallpaper (SqM)
Regular price £26.95Regular priceUnit price / per£107.80Sale price £26.95Sale -
The Owl Mural Wallpaper (SqM)
Regular price £26.95Regular priceUnit price / per -
Morning Glade Mural Wallpaper (SqM)
Regular price £26.95Regular priceUnit price / per£107.80Sale price £26.95Sale -
Flowers and Fruits Bouquet Dark Mural Wallpaper (SqM)
Regular price £26.95Regular priceUnit price / per£107.80Sale price £26.95Sale -
Butterflies Fairy Mural Wallpaper (SqM)
Regular price £26.95Regular priceUnit price / per£24.95Sale price £26.95 -
Almond Blossoms Mural Wallpaper (SqM)
Regular price £26.95Regular priceUnit price / per£107.80Sale price £26.95Sale -
Caribbean Rainforest Black and White Mural Wallpaper (SqM)
Regular price £26.95Regular priceUnit price / per£24.95Sale price £26.95 -
Caribbean Rainforest Mural Wallpaper (SqM)
Regular price £26.95Regular priceUnit price / per£24.95Sale price £26.95 -
Blue Forest Mist Mural Wallpaper (SqM)
Regular price £26.95Regular priceUnit price / per£24.95Sale price £26.95 -
Vintage Palm Trees Engraving Mural Wallpaper (SqM)
Regular price £26.95Regular priceUnit price / per£107.80Sale price £26.95Sale -
Dream Blue Forest Mural Wallpaper (SqM)
Regular price £26.95Regular priceUnit price / per£24.95Sale price £26.95 -
Palms Shadow Mural Wallpaper (SqM)
Regular price £26.95Regular priceUnit price / per£107.80Sale price £26.95Sale -
Palms Splendor Mural Wallpaper (SqM)
Regular price £26.95Regular priceUnit price / per£107.80Sale price £26.95Sale -
Gradient Geometry Mural Wallpaper (SqM)
Regular price £42.72Regular priceUnit price / per -
The Rabbit Play Mural Wallpaper (SqM)
Regular price £42.72Regular priceUnit price / per -
Atlas of Astronomy Mural Wallpaper (SqM)
Regular price £42.72Regular priceUnit price / per